
Gold Craftsmanship
2025 PARADE OF HOMES

1 – Bear Flower Retreat
Buchanan Construction, LLC
39 Bear Flower Trail, Arden, NC 28704 – IN PERSON & VIRTUAL
“Stunning Mountain Modern Design with room for the entire family to join.” – Rick Buchanan
This stunning home embodies luxurious mountain modern living, featuring a dramatic steel floating staircase, theater open to the game room, expansive wet bar, exercise room and sauna, wine cellar, custom light fixtures, teen lounge, and a spectacular outdoor oasis with a kitchen, pool, and spa. It masterfully blends elegance and functionality—ideal for sophisticated entertaining or serene relaxation for the entire family.
To view a full-size image, click one of the top, large images below.
About Home
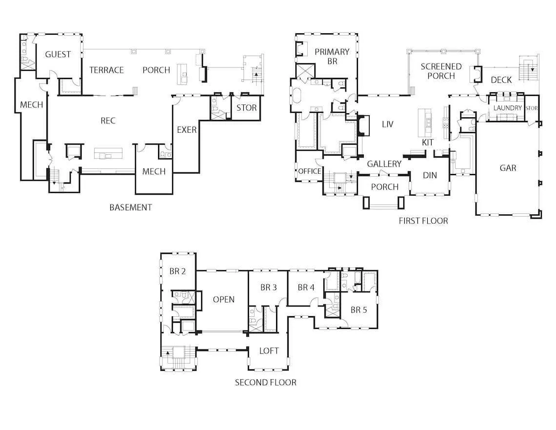
39 Bear Flower Trail Arden, NC 28704 • In-Person & Virtual • 6 Beds, 9 Baths • 8200 sq/ft.
Special Features
- Mountain Modern Design
- Marvin Windows & Doors throughout infuse the space with abundant natural light
- Open-concept layout spotlighting tailor-made custom light fixtures
- Dramatic steel floating staircase with timber treads along a glass wall, crowned by a chandelier dropping to six feet above the floor—a stylish, timeless showstopper
- Striking floor-to-ceiling fireplace as a captivating focal point with imported tile
- Expansive entertaining areas ideal for family and friends
- While the interior captivates, the outdoor oasis—with sparkling pool and luxurious spa will steal your heart!
Directions
From downtown Asheville, take I-26 East towards Hendersonville and use Exit 37 for Long Shoals Road, turning RIGHT at the end of the ramp. Continue for about (2.5 miles) before turning RIGHT onto Brevard Road/NC-191. After half a mile, the entrance to The Cliffs at Walnut Cove will be on your LEFT. Please proceed to the Cliffs Real Estate Office, where parking is available, and a shuttle will take you to the home.
Take the 3D Virtual Tour
About the Builder
Buchanan Construction, LLC
Buchanan Construction is a premier, award-winning, design-build firm celebrated for crafting custom luxury residences, visionary renovations, and iconic commercial spaces. Based in Asheville, NC, we elevate Western NC living through our unrivaled integrated approach, where our team of designers, builders, and experts collaborates seamlessly with cutting-edge project management technology. Infusing bold creativity and a caring, inclusive spirit into every step, we turn the building adventure into a fulfilling journey for our discerning clientele—delivering homes and spaces that inspire for generations.
For more information on this home, contact: Rick Buchanan | 828-650-6565 | BuchananConstruction.com
MEMBER PARTNERS
PREVIOUS
1 – Bear Flower Retreat
For More Information
if you have additional questions, please visit the Frequently Asked Questions page for more information. For questions about accessibility during in-person tour, please contact BABRM at (828) 299-7001.

Connect on social: