
Gold Craftsmanship
2025 PARADE OF HOMES

11 – Southern Mountain Home
Solid Rock Builders L.L.C.
Fletcher, NC – VIRTUAL ONLY
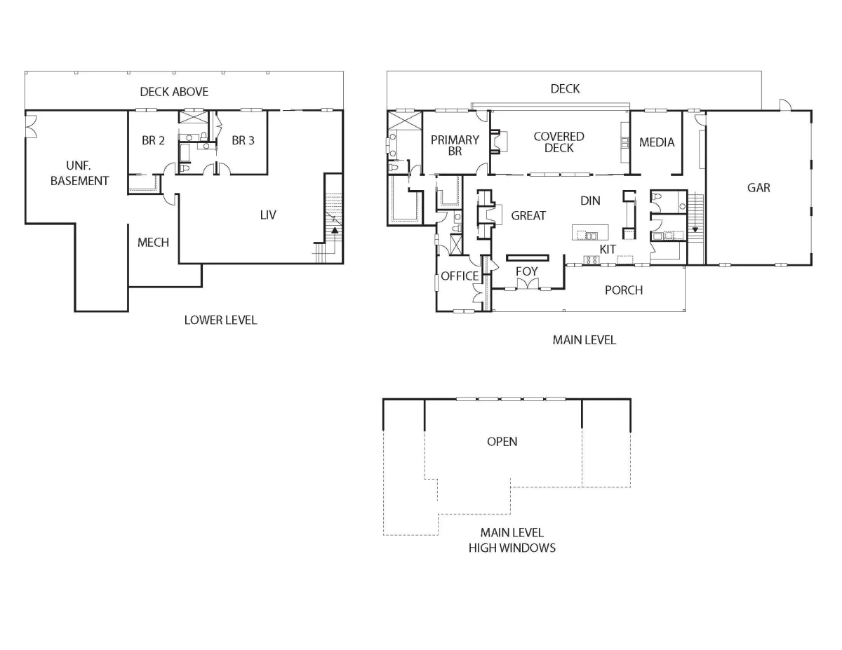
“An open floor plan with a large porch/deck space for outdoor living.” – Travis Meinch
We worked closely with the homeowner to make his vision come to life. From the freestanding entry wall, to the 39′ steel beam spanning the porch, the dropped deck to keep the patio views un-obstructed. Custom welded deck handrails and gate. Custom kitchen cabinets, range hood, fireplace surround and smart lighting. This house is filled with custom touches throughout, and designed for outside living to enjoy the view.
To view a full-size image, click one of the top, large images below.
About Home
Fletcher, NC • Virtual Only • 3 Beds, 4.5 Baths • 5378 sq/ft.
Special Features
- Steel beams and posts span the large front porch
- Thermory siding
- Custom kitchen with waterfall island
- Custom steel handrails
- 27′ custom white oak beams
- Energy Star and Green Built Certified
Directions
Virtual only.
Take the 3D Virtual Tour
About the Builder
Solid Rock Builders L.L.C.
We believe our reputation is everything. We focus on understanding our clients’ vision and bringing it to life, offering a trusting partnership between our team, subcontractors and our clients.
For more information on this home, contact: Travis Meinch | 828-712-3280 | SolidRockBuilders.com
MEMBER PARTNERS
PREVIOUS
11 – Southern Mountain Home
For More Information
if you have additional questions, please visit the Frequently Asked Questions page for more information. For questions about accessibility during in-person tour, please contact BABRM at (828) 299-7001.

Connect on social: