
Motto Award
RESCHEDULED 2024 PARADE OF HOMES

14 – The Arlow
Ward Enterprises & Ventures, LLC
Hendersonville, NC – VIRTUAL ONLY
“Crafted for comfort, built to last – this home is where modern design meets mountain living.” – Hunter Ward
Come see where modern design meets mountain serenity. This home features expert craftsmanship, warm natural finishes, and stunning views best experienced in person. The sleek kitchen blends function and style with high-end touches, while expansive windows and outdoor living spaces invite the beauty of nature inside. Built with efficiency and longevity in mind, this home is a true statement to thoughtful, lasting design. You won’t believe it until you’re here.
To view a full-size image, click one of the top, large images below.
About Home
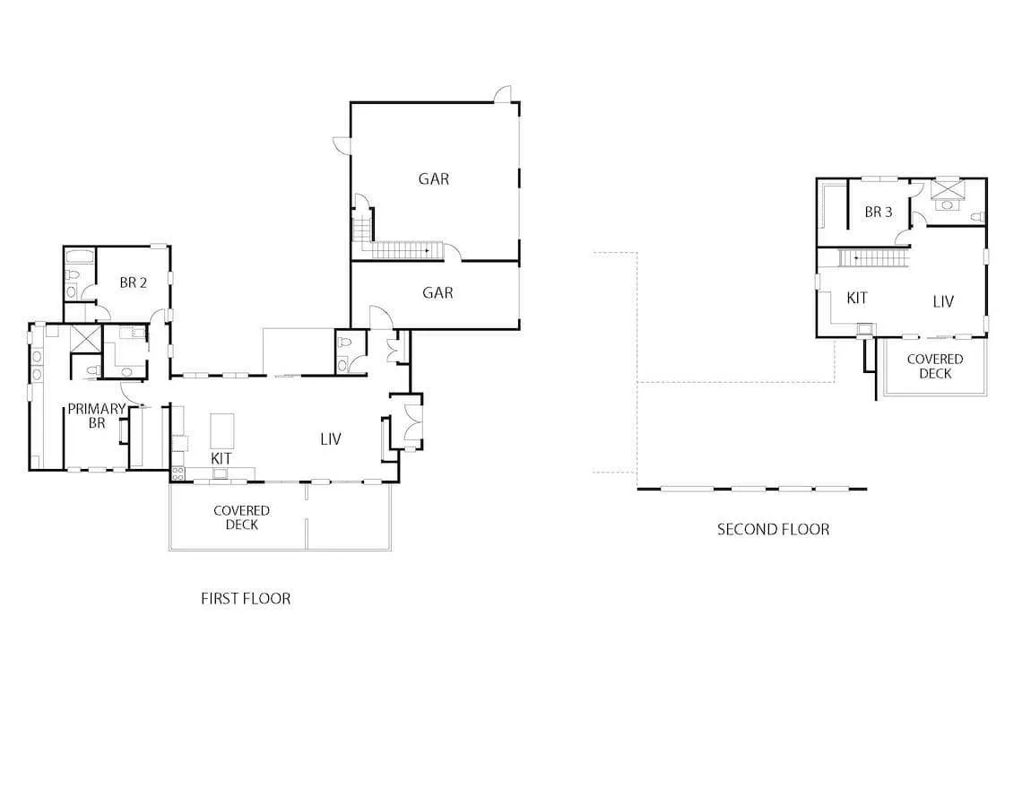
Hendersonville, NC • Virtual Only • 3 Beds, 3.5 Baths • 2633 sq/ft.
Special Features
- This home features floor-to-ceiling mountain views, real wood and stone materials
- A chef’s kitchen with quartz counters, matte black fixtures and sleek custom cabinetry
- Experience indoor-outdoor living with a covered deck and spacious three-car garage
- Energy-efficient systems and modern design details complete this thoughtfully built mountain home
Directions
Virtual only.
Take the 3D Virtual Tour
About the Builder
Ward Enterprises & Ventures, LLC
With over 50 years experience in the building industry, the Ward Family is uniquely suited to handle all of your new home needs. From home design to interior decorating and then building the home, you will enjoy our process and be part of the family by the end of the build.
For more information on this home, contact: Hunter Ward | 828-772-9827 | BuildWithWard.com
MEMBER PARTNERS
PREVIOUS
14 – The Arlow
For More Information
if you have additional questions, please visit the Frequently Asked Questions page for more information. For questions about accessibility during in-person tour, please contact BABRM at (828) 299-7001.

Connect on social: