
Motto Award
RESCHEDULED 2024 PARADE OF HOMES

24 – Classic Elegant Residence
J.S. Miller Construction Co., Inc.
Asheville, NC – VIRTUAL ONLY
“This project was a pleasure to work on from beginning to end.” – Wyatt Miller
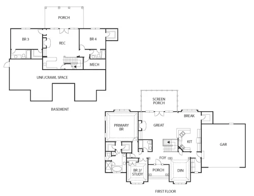
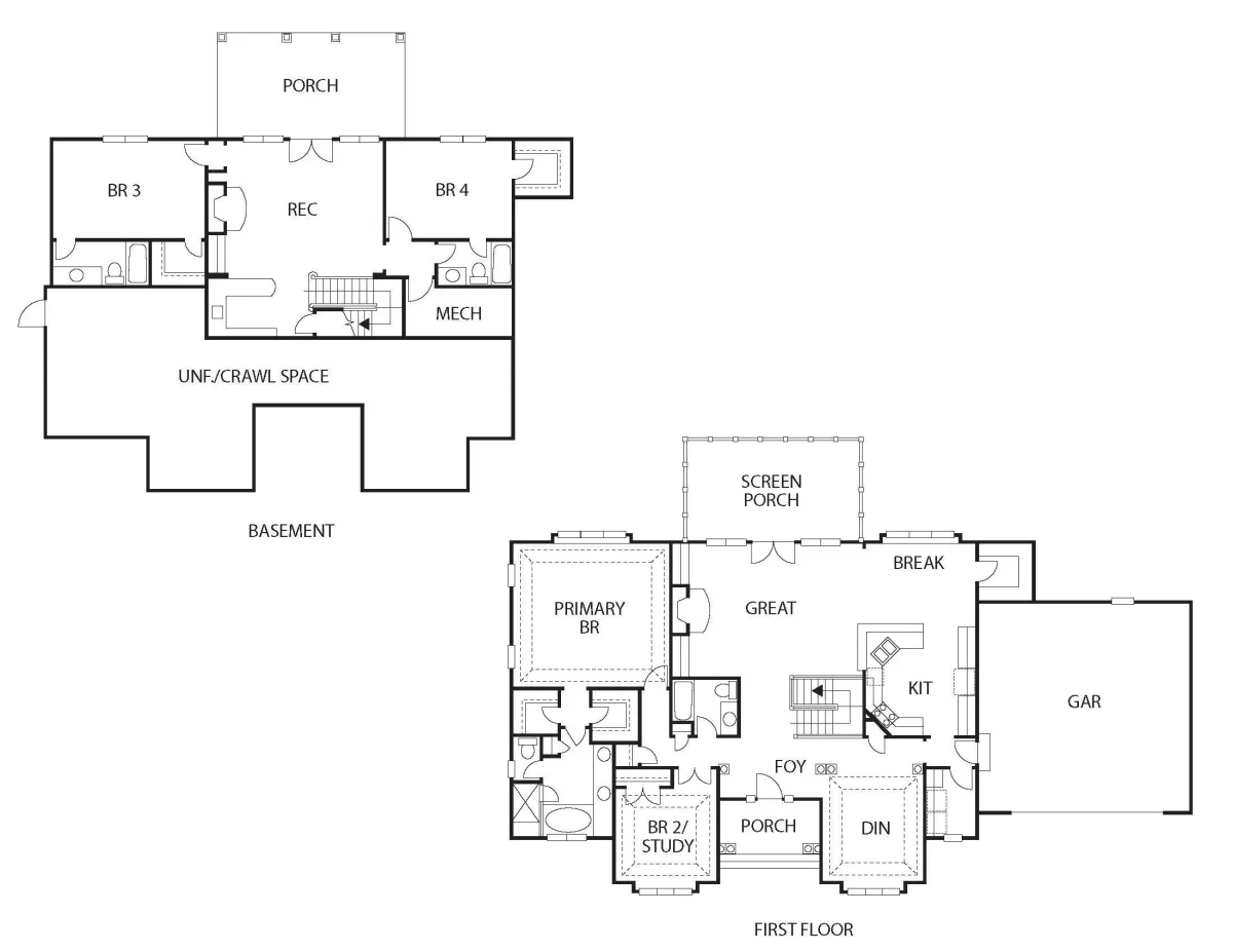
This home embodies casual elegance. Timeless finishes and attention to detail are evident in every space.
To view a full-size image, click one of the top, large images below.
About Home
Asheville, NC • Virtual Only • 4 Beds, 4 Baths • 4500 sq/ft.
Special Features
- Beam work and stone fireplace in the main living area
- Ten foot custom kitchen island with beautifully appointed walk-in pantry
- Screen porch with fireplace and scenic views
- Lower-level family room complete with a small kitchen
- Classic painted brick exterior for timeless curb appeal
- Located in the desirable Thoms Estate Community
Directions
Virtual only.
Take the 3D Virtual Tour
About the Builder
J.S. Miller Construction Co., Inc.
JS Miller Construction has been building award winning homes and communities in Western North Carolina for over 40 years. We are now a 3 generation team of General Contractors. Joe, Brad and Wyatt Miller. The hallmarks of our business are craftsmanship, integrity and trust.
For more information on this home, contact: Wyatt Miller | 828-450-3795 | JSMillerConstruction.com
MEMBER PARTNERS
PREVIOUS
24 – Classic Elegant Residence
For More Information
if you have additional questions, please visit the Frequently Asked Questions page for more information. For questions about accessibility during in-person tour, please contact BABRM at (828) 299-7001.

Connect on social: