
Motto Award
RESCHEDULED 2024 PARADE OF HOMES

26 – Kingston
Buchanan Construction, LLC
25 Rantis Lane, Black Mountain, NC 28711 – IN PERSON & VIRTUAL
“Kingston Home blends beautiful village-style community, local materials and Charleston-inspired farmhouse style, offering flexible living.” – Rick Buchanan
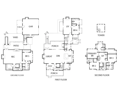
Visit this stunning 4,000 sq/ft timber-frame farmhouse blending Charleston influences with WNC’s natural character. This multi-level masterpiece offers seamless inside-outside living with wraparound porches, an elevator, near infrared sauna and five fireplaces for cozy gatherings. Custom details abound, from wide-plank white oak floors to western red cedar beams and reclaimed wood accents. Enjoy breathtaking views from upper decks and rooms of the Great Craggy Mountains and Seven Sisters.
To view a full-size image, click one of the top, large images below.
About Home
25 Rantis Lane, Black Mountain, NC 28711 • In-Person & Virtual • 5 Beds, 5.5 Baths • 4413 sq/ft.
Special Features
- Two houses in one with guest suite, kitchenette, balconies and garage
- “The Tower” sanctuary with near-360- degree mountain vistas
- Primary suite with cedar closet, balcony bath and mountain views
- NC sourced brick porches, stucco and gas lanterns for romantic ambiance
- Authentic timber features: cedar siding, oak flooring, reclaimed wood
- Copper eyebrow front porch
Directions
Head East on I-40 to the Black Mountain Exit (Exit 64) and turn RIGHT on to Hwy. 9, travel approximately (3/4 of a mile) and turn RIGHT on Jane Jacobs Road. Parking will be provided in the parking lot across the street from the YMCA.
Take the 3D Virtual Tour
About the Builder
Buchanan Construction, LLC
Buchanan Construction is a premier award-winning, design-build firm celebrated for crafting custom luxury residences, visionary renovations, and iconic commercial spaces. Based in Asheville, NC, we elevate Western NC living through our unrivaled integrated approach, where our team of designers, builders, and experts collaborates seamlessly with cutting-edge project management technology. Infusing bold creativity and a caring, inclusive spirit into every step, we turn the building adventure into a fulfilling journey for our discerning clientele—delivering homes and spaces that inspire for generations.
For more information on this home, contact: Rick Buchanan | 828-650-6565 | BuchananConstruction.com
MEMBER PARTNERS
PREVIOUS
26 – Kingston
For More Information
if you have additional questions, please visit the Frequently Asked Questions page for more information. For questions about accessibility during in-person tour, please contact BABRM at (828) 299-7001.

Connect on social: