
Motto Award
RESCHEDULED 2024 PARADE OF HOMES

37 – Sola-Yu Residence
Home Sweet Home Land Management Group, LLC
Black Mountain, NC – VIRTUAL ONLY
“Designed for elevated mountain living with timeless craftsmanship, thoughtful details and unmatched indoor-outdoor flow.” – Thomas McClain
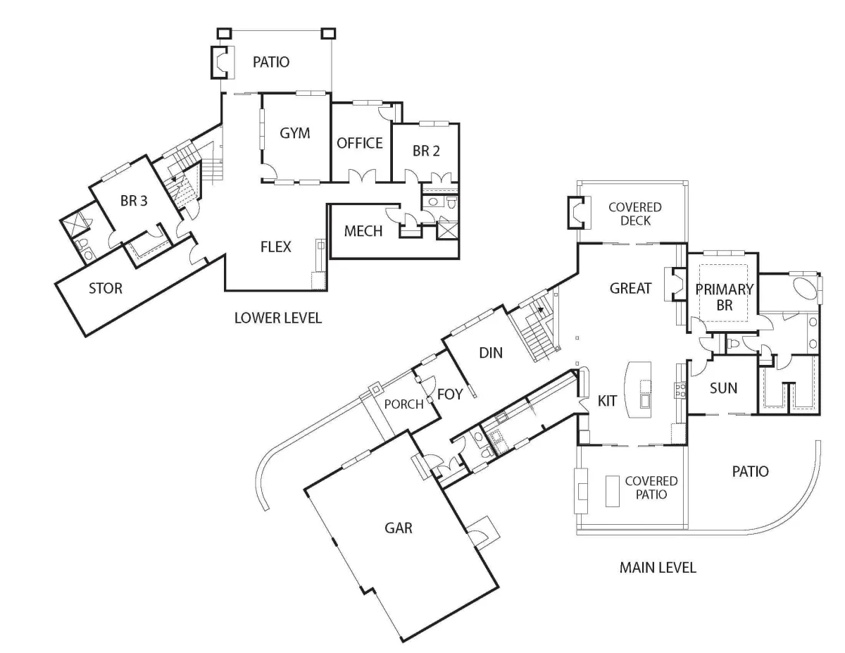
This solar-powered mountain retreat offers breathtaking views and is just minutes from town. Enjoy a massive outdoor kitchen with flagstone and beams, a cedar-framed great room and a spacious eat-in kitchen with a hidden pantry and laundry. Bonus features include a home gym and ADA-compliant wet room. Every detail is designed for comfort, style and accessibility—don’t miss this unique and unforgettable home on the tour!
To view a full-size image, click one of the top, large images below.
About Home
Black Mountain, NC • Virtual Only • 3 Beds, 3.5 Baths • 4198 sq/ft.
Special Features
- Solar-powered home
- Massive outdoor kitchen with exposed beams and flagstone
- In-home gym
- Great room with exposed cedar timber framing
- Spacious eat-in kitchen with a hidden door leading to pantry and laundry
- ADA compliant
Directions
Virtual only.
Take the 3D Virtual Tour
About the Builder
Home Sweet Home Land Management Group, LLC
Our style blends mountain-modern craftsmanship with award-winning design and energy-efficient construction. As a design-build firm, we seamlessly integrate architects, interior designers, builders and realtors into one thoughtful process. We craft healthier, high-performance homes built to last— rooted in integrity, collaboration and meticulous attention to detail.
For more information on this home, contact: Thomas McClain | 828-242-3465 | HSHWNC.com
MEMBER PARTNERS
PREVIOUS
37 – Sola-Yu Residence
For More Information
if you have additional questions, please visit the Frequently Asked Questions page for more information. For questions about accessibility during in-person tour, please contact BABRM at (828) 299-7001.

Connect on social: