
Silver Craftsmanship
2025 PARADE OF HOMES

4 – Curtain Bluff Modern
HomeSource Real Estate and Construction, Inc.
137 Curtain Bluff, Hendersonville, NC 28791 – IN PERSON & VIRTUAL
“Thoughtfully designed by Holden Design Shop and the homeowner to create a light and bright space and support the homeowner’s active lifestyle.” – Tim Alexander
Come see how low maintenance finishes and dog friendly needs can be designed together to look fabulous, airy and modern.
To view a full-size image, click one of the top, large images below.
About Home
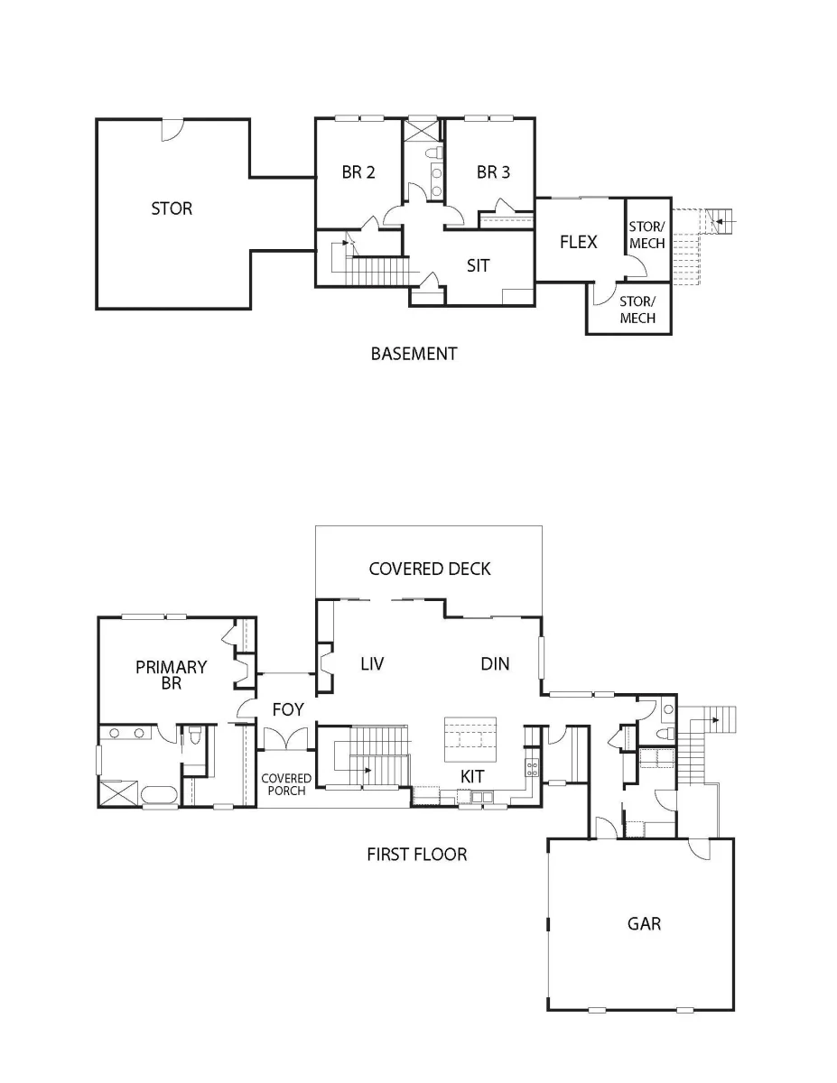
137 Curtain Bluff Hendersonville, NC 28791 • In-Person & Virtual • 3 Beds, 2.5 Baths • 2705 sq/ft.
Special Features
- Sealed crawlspace
- Superior wall foundation
- Custom design kitchen and baths by the HomeSource Design Center
- Maintenance-free LVP Flooring
- Dog washing station in garage
- Modern metal front door system
- Fantastic use of oversized Anderson windows for a light and bright house
Directions
From I-26 intersection and Hwy. 25 Intersection (Exit 44), continue South for (3.3 miles). Turn RIGHT onto Baystone Drive. Then bear LEFT onto Randy Drive. The Boulders will be on your LEFT in just over (0.5 mile). Once at gate: drive straight on Boulder Vista Drive, turn LEFT onto Curtain Bluff. Home is on the LEFT.
Take the 3D Virtual Tour
About the Builder
HomeSource Real Estate and Construction, Inc
HomeSource Builders is an Asheville-based design firm that specializes in high-quality renovations, additions, and custom homes. For 25 years, we have crafted spaces that reflect both style and substance. With lasting craftsmanship, a focus on integrit,y and personalized service, we are committed to exceeding client expectations.
For more information on this home, contact: Tim Alexander | 828-252-1022 | www.HomeSourceBuilders.com
MEMBER PARTNERS
PREVIOUS
4 – Curtain Bluff Modern
For More Information
if you have additional questions, please visit the Frequently Asked Questions page for more information. For questions about accessibility during in-person tour, please contact BABRM at (828) 299-7001.

Connect on social: