
Motto Award
2025 PARADE OF HOMES

41 – Casa Collina
Buchanan Construction, LLC
936 Mills River Way, Horse Shoe, NC 28742 – IN PERSON & VIRTUAL
“This vibrant post-retirement entertainment home is imbued with vibrant colors, local materials and custom features.” – Rick Buchanan
Discover this Vibrant Entertainment Haven made for socializing; blending contemporary flair with warm textures and some incredible features! Locally sourced wood is front and center with dramatic metallic contrasts to draw your eye to check out every unique detail about this home. This home may be listed as 3,500 sq/ft but it certainly seems larger than that after you experience the thoughtful layout of this home!
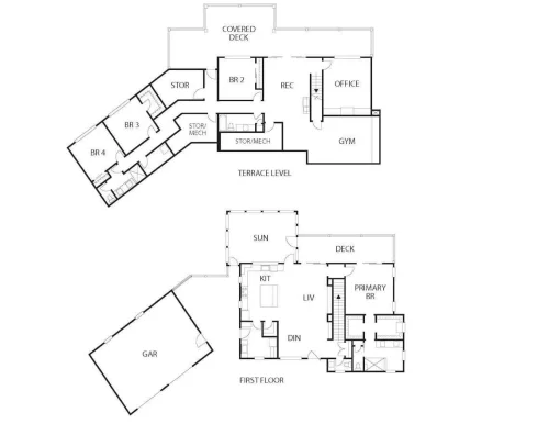
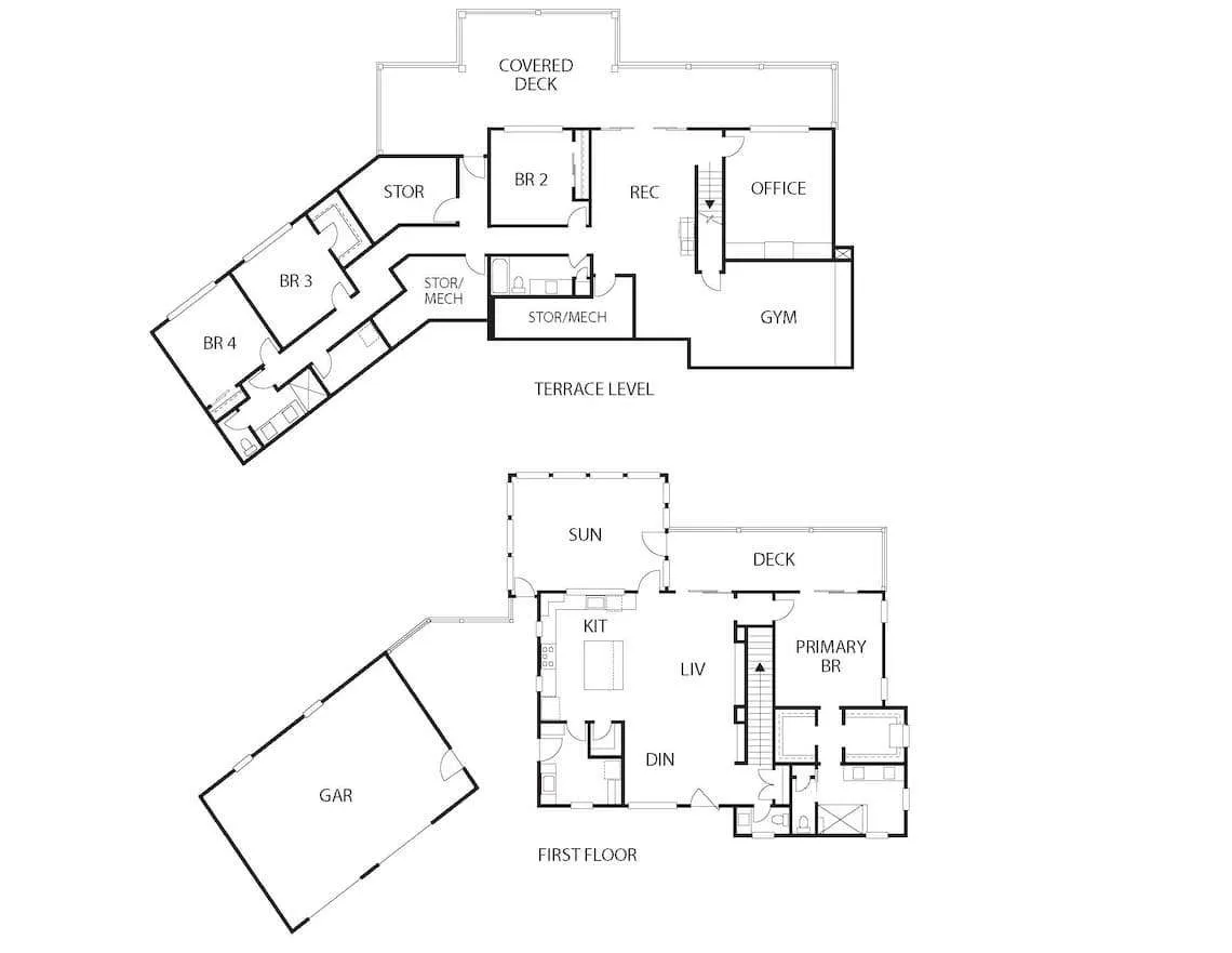
To view a full-size image, click one of the top, large images below.
About Home
936 Mills River Way, Horse Shoe, NC 28742 • In-Person & Virtual • 4 Beds, 3.5 Baths • 3513 sq/ft.
Special Features
- Locally sourced walnut for custom entry door, fireplace feature wall, island waterfall legs
- Incredible views on secluded steep lot
- Dramatic 18-foot ceilings with clerestory windows for additional light
- Locally reclaimed floating wood vanity from a lightning-struck Sycamore tree
- Custom outdoor grill, breezeway garden and 4 seasons room
- Entertainment spaces are thoughtfully blended from the porch, office, rec room and gym
Directions
Take Exit 26 East towards Hendersonville. Take Exit 40, Airport Road, and keep RIGHT towards the Airport. Travel (4.5 miles) on 280/Bolyston Hwy. Turn RIGHT onto South Mills River Road. Turn RIGHT onto Whitaker Lane, then LEFT onto Mills River Way. 936 will be (1 mile) on your RIGHT.
Take the 3D Virtual Tour
About the Builder
Buchanan Construction, LLC
Buchanan Construction is a premier award-winning, design-build firm celebrated for crafting custom luxury residences, visionary renovations, and iconic commercial spaces. Based in Asheville, NC, we elevate Western NC living through our unrivaled integrated approach, where our team of designers, builders, and experts collaborates seamlessly with cutting-edge project management technology. Infusing bold creativity and a caring, inclusive spirit into every step, we turn the building adventure into a fulfilling journey for our discerning clientele—delivering homes and spaces that inspire for generations.
For more information on this home, contact: Rick Buchanan | 828-650-6565 | BuchananConstruction.com
MEMBER PARTNERS
PREVIOUS
41 – Casa Collina
For More Information
if you have additional questions, please visit the Frequently Asked Questions page for more information. For questions about accessibility during in-person tour, please contact BABRM at (828) 299-7001.

Connect on social: