
Gold Craftsmanship
2025 PARADE OF HOMES

Green Certification
2025 PARADE OF HOMES
6 – Elk Wallow Gap
Mountain Sun Building & Design, LLC
780 Elk Mountain Scenic Highway, Asheville, NC 28804 – IN PERSON & VIRTUAL
“Expansive glass and natural materials seamlessly connect this home to the surrounding forest and distant mountains.” – Emily Boyd
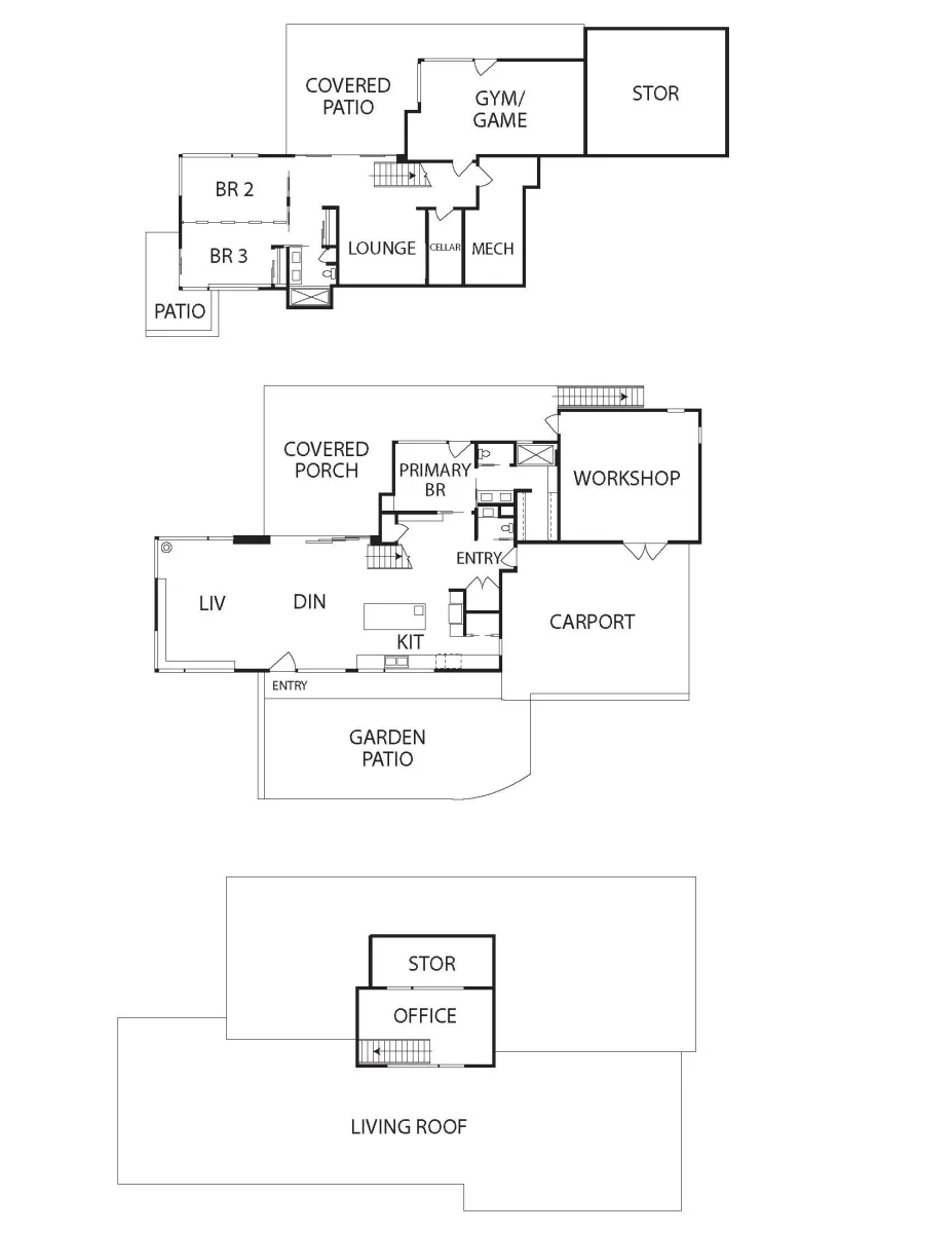
With 1600 sq/ft of covered outdoor living space and true floor-to-ceiling windows and doors, this home was designed with a restrained palette of concrete, steel, charred cedar, white oak, black walnut, and quartzite, and consistent, minimal details to allow nature to be the focal point. Enter through the sunken patio garden into the heart of the home and continue onto the covered porch for panoramic distant mountain and sunset views.
To view a full-size image, click one of the top, large images below.
About Home
780 Elk Mountain Scenic Highway Asheville, NC 28804 • In-Person & Virtual • 3 Beds, 2.5 Baths • 3120 sq/ft.
Special Features
- Site-harvested white oak interior and exterior ceilings and porch flooring
- Custom site-welded steel staircase with local solid black walnut treads
- Chef’s kitchen with two sinks, integrated appliances, and baking area
- 2,000 sq/ft of living roof and hidden 15kW PV array
- Geothermal HVAC with radiant heat in polished concrete floors
- GreenBuilt Platinum Net Zero and Regenerative certified with -11 HERS
Directions
From downtown Asheville, take Merrimon Avenue North. Turn RIGHT on Beaverdam Road. In 0.6 miles, turn RIGHT on Elk Mountain Scenic Hwy. In 4.4 miles, arrive at Elk Wallow Gap. Follow signs for parking.
Take the 3D Virtual Tour
About the Builder
Mountain Sun Building & Design, LLC
Mountain Sun Building & Design strives to create light-filled interiors that capture the beauty of their natural surroundings through thoughtfully placed openings and floor plans designed for modern lifestyles. Homes are energy-efficient and use durable natural materials and attention to detail to create a timeless aesthetic and healthy indoor environment.
For more information on this home contact: Emily Boyd | 828-713-0549 | www.MountainSunBuilding.com
MEMBER PARTNERS
PREVIOUS
6 – Elk Wallow Gap
For More Information
if you have additional questions, please visit the Frequently Asked Questions page for more information. For questions about accessibility during in-person tour, please contact BABRM at (828) 299-7001.

Connect on social: