
Motto Award
RESCHEDULED 2024 PARADE OF HOMES

8 – Levine
AR Construction & Development, Inc.
172 Settings Boulevard, Black Mountain, NC 28711 – IN PERSON & VIRTUAL
“Mid-century Modern influenced mountain home.” – Anthony Roberts
Open, contemporary design that integrates the beauty of mountain art and furnishings.
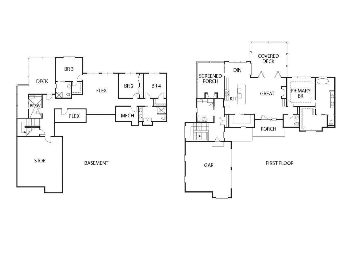
To view a full-size image, click one of the top, large images below.
About Home
172 Settings Boulevard, Black Mountain, NC 28711 • In-Person & Virtual • 3 Beds, 3 Baths • 3500 sq/ft.
Special Features
- Windows that maximize views and bring the outdoors inside
- Gorgeous, oversized pivot front door
- Expansive shower/tub “wet area” in primary bath
- Treehouse-like views from 30′ high wrap-around deck
- Unique Acacia hardwood floors
- Stunning cable-rail, extra-wide staircase
Directions
I-40 West to Black Mountain Exit, take Hwy. (9.2 miles). The Settings subdivision on RIGHT. Take LEFT on Settings Boulevard after the main gate. House is on RIGHT.
Take the 3D Virtual Tour
About the Builder
AR Construction & Development, Inc.
Starting with only a few tools and a passion for quality, Anthony Roberts founded AR Construction in 2006 in Hendersonville, North Carolina. Today, AR Construction is one of the most respected luxury custom home builders in Western North Carolina. Striving every day to be better than yesterday.
For more information on this home, contact: Anthony Roberts | 828-776-2490 | www.ARConstructionInc.com
MEMBER PARTNERS
PREVIOUS
8 – Levine
For More Information
if you have additional questions, please visit the Frequently Asked Questions page for more information. For questions about accessibility during in-person tour, please contact BABRM at (828) 299-7001.

Connect on social: