
Motto Award
RESCHEDULED 2024 PARADE OF HOMES

22 – Overlook Escape
Living Stone Design + Build
Fletcher, NC – VIRTUAL ONLY
“Built for beauty and longevity, Overlook Escape brings our clients’ design story to life.” – Sean Sullivan
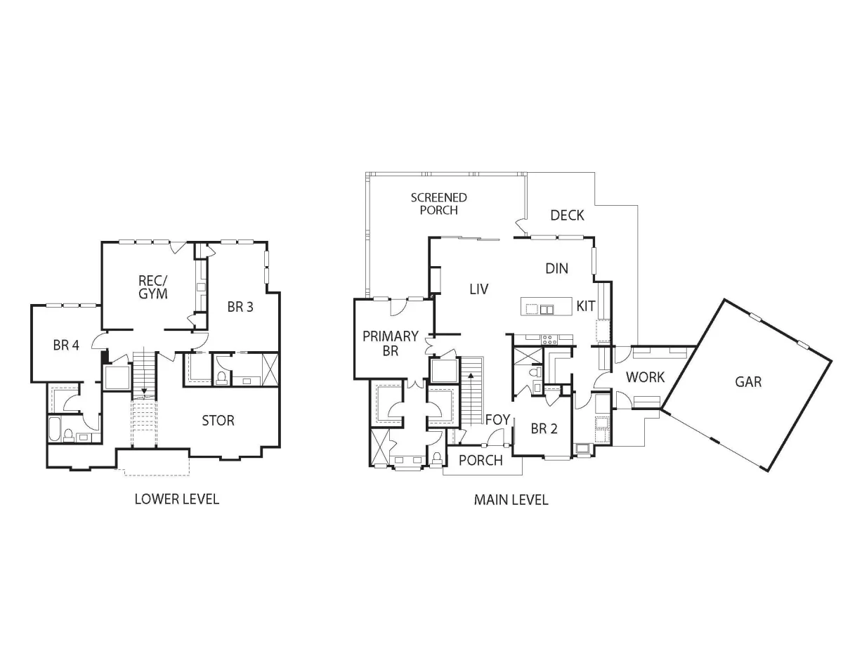
Perched with expansive views, Overlook Escape showcases the Living Stone Standard with seamless indoor-outdoor living and thoughtful aging-in-place features—including a residential elevator. Vaulted ceilings with exposed structural beams invite natural light, while the multi-level layout offers distinct private and gathering spaces. Come experience how wellness-focused design and craftsmanship converge in this stunning, energy-efficient home built for both style and long-term comfort.
To view a full-size image, click one of the top, large images below.
About Home
Fletcher, NC • Virtual Only • 3 Beds, 4 Baths • 3975 sq/ft.
Special Features
- Expansive wraparound porches on every level with long-range mountain views in a peaceful setting
- Modern exterior with dramatic heavy timbers and a striking wood slat wall
- Timber-lined ceilings and a custom metal stair rail that highlight expert craftsmanship
- Designed with intention and natural materials that define the Living Stone Standard
Directions
Virtual only.
Take the 3D Virtual Tour
About the Builder
Living Stone Design + Build
Sean and Laura’s Design + Build system is simplifying and improving the entire building process, giving every client what they deserve—the ability to enjoy the process with no regrets. Come see why Living Stone Design + Build is now the nation’s top custom home builder.
For more information on this home, contact: Sean Sullivan | 855-720-2435 | LivingStoneDesignBuild.com
MEMBER PARTNERS
PREVIOUS
22 – Overlook Escape
For More Information
if you have additional questions, please visit the Frequently Asked Questions page for more information. For questions about accessibility during in-person tour, please contact BABRM at (828) 299-7001.

Connect on social: