
Motto Award
RESCHEDULED 2024 PARADE OF HOMES

35 – Timber Hill Retreat
Buchanan Construction, LLC
Black Mountain, NC – VIRTUAL ONLY
“Breathtaking views of the Parkway and Swannanoa Valley highlight this beautiful timber frame house.” – Rick Buchanan
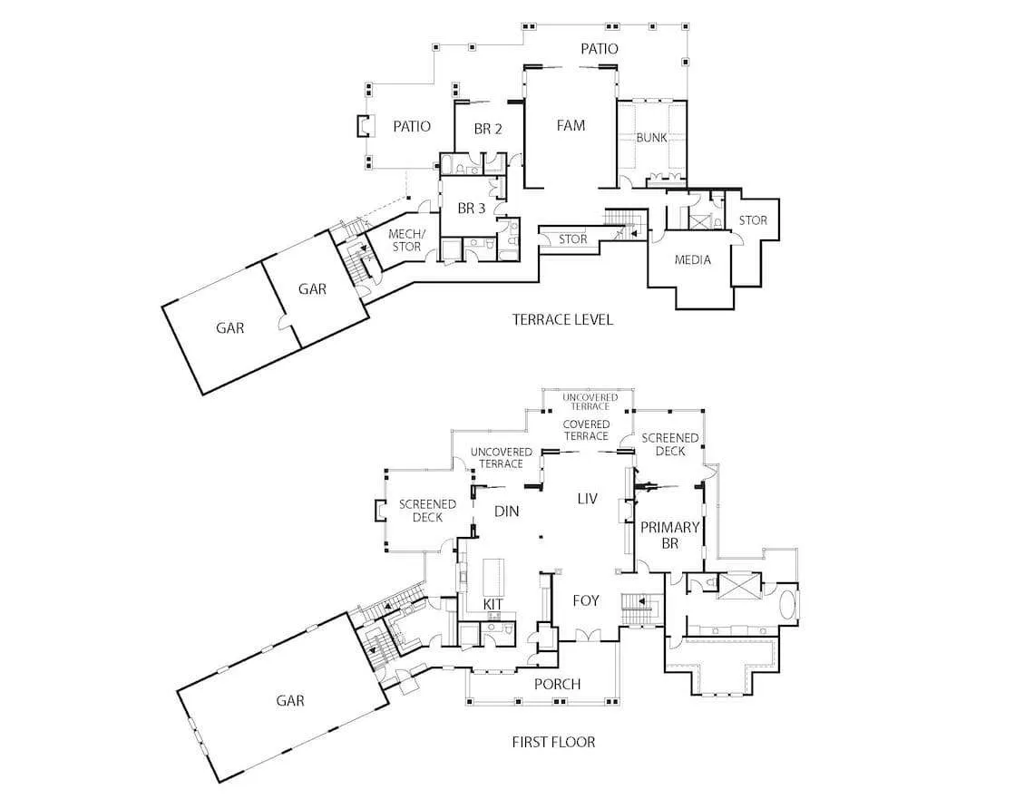
Discover this exquisite modern timberframe luxury home, boasting a grand main-level primary suite with a spa-inspired bathroom featuring a double shower, bench and soaking tub, plus a custom-designed closet. The lower-level guest suite includes a children’s bedroom with built-in bunk beds and shelving. Expansive rear windows frame breathtaking Parkway and Swannanoa Valley mountain vistas, creating an unparalleled retreat for discerning homeowners seeking elegance and serenity.
To view a full-size image, click one of the top, large images below.
About Home
Black Mountain, NC • Virtual Only • 4 Beds, 5 Baths • 6829 sq/ft.
Special Features
- Oversized Timbers – the roof structure features oversized timber construction
- Amazing stone work throughout the interior and exterior of the home
- Primary suite – huge and amazing built-ins
- Trim work, built in shelving, custom bunk beds
- Landscaping blends with beautiful outdoor environment
- Stone outdoor shower
Directions
Virtual only.
Take the 3D Virtual Tour
About the Builder
Buchanan Construction, LLC
Buchanan Construction is a premier award-winning, design-build firm celebrated for crafting custom luxury residences, visionary renovations, and iconic commercial spaces. Based in Asheville, NC, we elevate Western NC living through our unrivaled integrated approach, where our team of designers, builders, and experts collaborates seamlessly with cutting-edge project management technology. Infusing bold creativity and a caring, inclusive spirit into every step, we turn the building adventure into a fulfilling journey for our discerning clientele—delivering homes and spaces that inspire for generations.
For more information on this home, contact: Rick Buchanan | 828-650-6565 | BuchananConstruction.com
MEMBER PARTNERS
PREVIOUS
35 – Timber Hill Retreat
For More Information
if you have additional questions, please visit the Frequently Asked Questions page for more information. For questions about accessibility during in-person tour, please contact BABRM at (828) 299-7001.

Connect on social: