
Motto Award
RESCHEDULED 2024 PARADE OF HOMES

34 – Summit Vista at Carriage Park
Mountainscape One, Inc.
24 S Watchman Drive, Hendersonville, NC 28791 – IN PERSON & VIRTUAL
“Mountain modern design with year-round layered mountain views and easy access.” – Bradley Schnyder
Perched in Carriage Park’s Summit Vista enclave, this new mountain-modern home offers year-round long-range views, luxury finishes and easy lock-and-go living just 7 minutes from downtown Hendersonville. Highlights include: Vaulted ceilings, a chef’s kitchen with Thermador appliances, White Oak floors and Oknoplast windows. Enjoy resort-style amenities like a clubhouse, indoor pool and a manned and gated community entrance with 24/7 security. Discover luxury, lifestyle and views!
To view a full-size image, click one of the top, large images below.
About Home
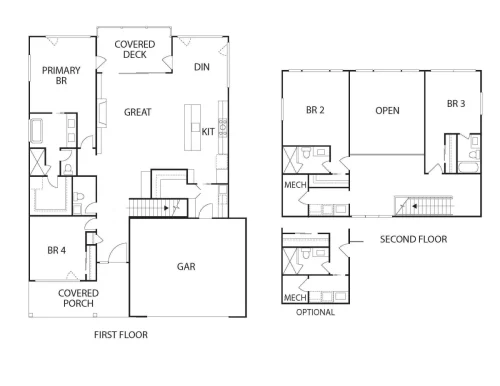
24 S Watchman Drive, Hendersonville, NC 28791 • In-Person & Virtual • 4 Beds, 4 Baths • 3040 sq/ft.
Special Features
- Stunning year-round long-range mountain views
- Chef’s kitchen with Thermador appliances, custom cabinetry and walk-in pantry
- Vaulted high ceilings and wide-plank White Oak floors
- High-end finishes: Polished quartzite, granite surfaces and designer lighting
- Lock-and-go convenience in a gated community just 7 minutes from downtown Hendersonville and 10 miles to the Asheville Regional Airport
- Resort-style amenities: Clubhouse, indoor pool, tennis/pickle ball courts and 24-hour security
Directions
From downtown Asheville, take I-26 East/US-25 South toward Hendersonville. Exit onto NC-191 (Haywood Road) West. Turn LEFT onto Carriage Parkway, then LEFT onto Coachman Drive. Continue to 24 S Watchman Drive. Please note: this home is located within a gated community, so you may experience a brief delay at the gate — thank you for your patience when arriving.
Take the 3D Virtual Tour
About the Builder
Mountainscape One, Inc.
Mountainscape One builds timeless, high-quality homes inspired by the natural beauty of the mountains. Our craftsmanship blends modern design with lasting materials, prioritizing energy efficiency, comfort and livability. With integrity at our core, we value clear communication, strong client relationships and creating spaces that feel as good as they look.
For more information on this home, contact: Bradley Schnyder | 828-696-3388 | MountainscapeOne.com
MEMBER PARTNERS
PREVIOUS
34 – Summit Vista at Carriage Park
For More Information
if you have additional questions, please visit the Frequently Asked Questions page for more information. For questions about accessibility during in-person tour, please contact BABRM at (828) 299-7001.

Connect on social: